推广 热搜: 办公楼  污水处理厂  建筑图纸    宿舍楼  农村自建房  教学楼  广告牌  住宅楼  光伏 

6780m3每天炼油化工厂污废水处理站设计

上传会员: zt16 图纸格式: dwg 文件大小: 发布日期: 2025-11-19 收藏
下载数量: 累计下载 0 关注人数: 已有 7 人关注 评论人数: 已有 0 条评价 所需筑图币: 筑图币:6.00
点击图片查看原图
 
 
发布者






 
 随着社会现代化的积极发展,工业进程的不断深入,各种工业发展迅速且追求高校,甚至仅仅只追求利润,不重视环境。石油化工等等行业也在社会的支持下得到了飞速迅猛的发展。但是在社会发展进步的同时,也带给地球各种环境污染问题,有待解决,应当引起我们重视。

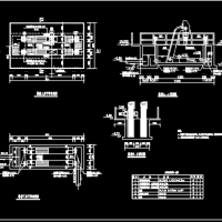
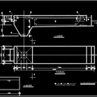
炼油厂的含油废水格栅、集水池清除大量杂物及垃圾,至隔油池可清除废水中的大量浮油,经过后续气浮池的作用,到这一阶段为止,水中的油类物质已经清除99.8%以上,经A/O反应池,脱氨并降解有机物,使污水得到净化。

本工艺对含油废水的处理完全符合预期的处理效果,适用于各类小型含油废水处理。

关键词: 含油废水; 污泥; A/O工艺;废水处理

资料由用户上传分享,版权归原作者所有,如有侵权,请发邮件到zhutucn@163.com,我们会及时处理
网站首页  |  客服QQ:2095057640  |  关于我们  |  联系方式  |  使用协议  |  免责声明  |  网站地图  |  排名推广  |  广告服务  |  积分换礼  |  网站留言  |  RSS订阅  |  违规举报  |  公安网备14031102000277