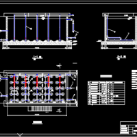
,不考虑远期发展。原污水中各项指标为:BOD浓度为960mg/L,COD浓度为1700mg/L,SS浓度为500mg/L。因该废水BOD值较大,不经处理会对环境造成巨大污染,故要求处理后的排放水要严格达到国家二级排放标准,即:BOD≤30mg/ L,COD≤100mg/ L,SS≤70mg/ L。 经分析知该处理水质属易生物降解又无明显毒性的废水,可采用两级生物处理以使出水达标。一级处理主要采用物理法,用来去除污水中的悬浮物质和无机物。二级处理主要采用生物法,包括厌氧生物处理法中的UASB法和好氧生物处理法中的SBR法,可有效去除污水中的BOD、COD。本设计工艺流程为:
啤酒废水 → 格栅 → 污水提升泵房 → 调节沉淀池 → UASB反应器→ SBR池→处理水 整个工艺具有总投资少,处理效果好,工艺简单,占地面积省,运行稳定,能耗少的优点。




