[筑图网]设计师兼职创收平台,上传图纸挣分成,上传资料得积分。
文档资料
图纸
推广
热搜:
办公楼
污水处理厂
建筑图纸
廊
宿舍楼
农村自建房
教学楼
广告牌
住宅楼
光伏
首页
文档资料
图纸
建筑
结构
园林
环保
电气
暖通
给排水
装修
水利
施工
路桥
机械
课程设计
文档资料:
设计资料
建筑施工
书籍
造价
论文
实习
监理
软件
消防
地产
教程(文档)
机械资料
首页
>
图纸
>
给排水图纸
>
建筑给排水
>
工农业建筑给排水
多式联运集配中心(物流分拣建筑)项目给排水设计图(2025)
上传会员:
alabika-08
图纸格式:
dwg
文件大小:
件
M
发布日期:
2025-12-26
收藏
下载数量:
累计下载
0
次
关注人数:
已有
4
人关注
评论人数:
已有
0
条评价
所需筑图币:
筑图币:
15.00
点击图片查看原图
[发信件咨询]
发布者
图纸详情
评价详情(0)
交易记录(0)
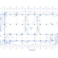
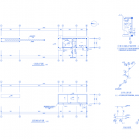
多式联运集配中心(物流分拣建筑)项目给排水设计图(2025)。3栋物流用房,建筑高25米,2层,1栋配套用房,地上5层,建筑高27.8米,另外3个门卫建筑,整个园区面积11.1万方。设计说明、系统图设计、布线图设计等、给水官网布置、消防喷淋布置、排水系统设计、室外给排水设计、海绵城市设计,内容详实,可供参考。
正在载入评论详细...
正在载入交易记录...
资料由用户上传分享,版权归原作者所有,如有侵权,请发邮件到zhutucn@163.com,我们会及时处理
网站首页
|
客服QQ:2095057640
|
关于我们
|
联系方式
|
使用协议
|
免责声明
|
网站地图
|
排名推广
|
广告服务
|
积分换礼
|
网站留言
|
RSS订阅
|
违规举报
|
公安网备14031102000277
公安网备14031102000277
晋ICP备19002093号-1