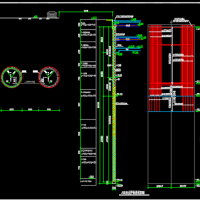
地下室深基坑支护设计图(地下连续墙混凝土支撑)
拟建建筑物为4栋住宅楼及裙楼,地下二层,局部三层。主体结构框架-剪力墙结构,采用桩基加筏板的基础形式。主体结构工程桩拟采用钻孔灌注桩。基坑总面积约8770m²,支护周长约390m。工程采用顺作法施工。基坑周边采用"两墙合一"地下连续墙作为基坑围护体,地下连续墙既作为基坑开挖阶段的挡土止水围护体,同时作为地下室结构外墙。基坑周边地墙厚度为800mm。基坑竖向设置两道钢筋混凝土支撑。根据地铁管理部门要求,为确保将基坑开挖期间降水对地铁隧道的影响减小到最小,本工程四面地下连续墙全部入岩,以隔断承压含水层。基坑内采用管井进行降水疏干。




